- 売買物件
- 三国町
- 募集中
- 物件No.
- No. R06-044
- 所在地
- 福井県坂井市三国町殿島9-18
- 価格
- 1280万円
- 居住誘導区域外
- 土地及び住宅
2026年3月4日
119
- 建物面積
- 334.46㎡
- 土地面積
- 445.77㎡
- 築年月
- 1984年12月 築
- 間取り
- 10DK
- 交通
- えちぜん鉄道三国線 三国駅 徒歩23分
- 保育園が近い
- 病院が近い
- 海が近い
1981年(昭和56年)6月以降着工
【アトリエと緑に囲まれた生活】
三国町の中でも九頭竜川や竹田川に囲まれた、特殊なエリア。
桜の名所である汐見公園も近く、少し歩けば三国祭を楽しめる三国神社周辺、旧市街地の商業エリアがひろがります。
特徴:アトリエ、茶室、丸い窓、笏谷石でできた浴室など、各部屋に特徴が見られる物件。
二世帯住宅やシェアハウス、事務所を兼用としてもいかがでしょうか。
- 所在地
- 福井県坂井市三国町殿島9-18
※正確な位置は取扱会社へお問い合わせください。
物件詳細
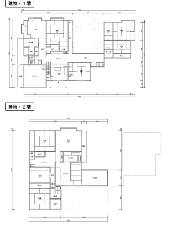
| 間取り詳細 | 1階 居間10畳、台所、風呂、トイレ(3ヶ所)、 和室12.5畳・8畳 ・4畳・8畳・6畳 2階 台所 、トイレ、納屋、和室8畳・10畳、洋室6畳・10畳・10畳 |
||
|---|---|---|---|
| 補修の要否(費用負担) | 多少の補修が必要(入居者負担) | ||
| 必要な補修箇所 | - | ||
| 主要施設までの距離 | 三国駅1.3km、坂井市役所三国支所1.7km、三国南小学校1km、三国中学校1.7km | ||
| 交通 | えちぜん鉄道三国線 三国駅 徒歩23分 | ||
|---|---|---|---|
| 所在地 | 福井県坂井市三国町殿島9-18 | ||
| 物件種目 | 売買 | ||
| 価格 | 12,800,000円 | 借地期間/地代(月額) | -/- |
|---|---|---|---|
| 権利金 | - | 敷金/保証金 | -/- |
| 礼金 | - | 維持費等 | - |
| その他一時金 | - | ||
| 設備 | トイレ3箇所 ・上水道 ・下水道 ・プロパンガス ・洗面所独立 | ||
| こだわりポイント | 空き家バンク登録物件 ・閑静な住宅街 | ||
| 備考 |
延床面積100坪を超える和モダンの邸宅。二世帯住宅でのご利用も可能です。インナーガレージに2台の駐車可能(最大3台まで)。茶室あり。 上水道の配管が鉄管のため赤錆がでます。 |
||
| 建物名 | 【アトリエと緑に囲まれた生活】三国町殿島(R06-044) | ||
|---|---|---|---|
| 間取り | 10DK | 建物面積 | 334.46㎡ |
| 土地面積 | 445.77㎡ | 私道負担面積 | - |
| 築年月 | 1984年12月 | 階建/階 | 2階建 |
| リフォーム / リノベーション |
- | ||
| 駐車場 | 2台 | 建物構造 | 木造 |
| 土地権利 | 所有権 | 都市計画 | 非線引区域 |
| 用途地域 | 1種住居 | 接道状況 | - |
| 建ぺい率 | 60% | 容積率 | 200% |
| 地目 | 宅地 | 地勢 | - |
| 国土法届出 | - | セットバック | - |
| 建築確認番号 | - | ||
| 現況 | 居住中・賃貸中 | 引渡し | 相談 |
|---|---|---|---|
| 仲介手数料 | - | ||
| 情報公開日 | 2026年3月4日 | 次回更新予定日 | - |
この物件のお問い合わせ先
株式会社西陣
TEL: 0776-82-7600
E-mail: nishijin@smile.ocn.ne.jp
免許番号: 福井県知事(9)第908号
取引態様: 仲介



















