- 売買物件
- 三国町
- 募集中
- 物件No.
- No. R06-058
- 所在地
- 福井県坂井市三国町新保5-5
- 価格
- 150万円
- 居住誘導区域外
- 土地及び住宅
2026年3月5日
70
- 建物面積
- 92.79㎡
- 土地面積
- 213.67㎡
- 築年月
- 1966年10月 築
- 間取り
- 4DK
- 交通
- バス 新保 停歩10分
- 病院が近い
- 海が近い
- リフォーム不要
三国の九頭竜川河口近くの住宅街に位置する物件! 少し歩けば目の前には三国の海が広がっています♪
- 所在地
- 福井県坂井市三国町新保5-5
※正確な位置は取扱会社へお問い合わせください。
物件詳細
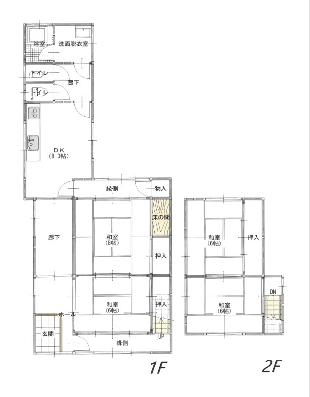
| 間取り詳細 | 1階 居間8.3畳、台所、風呂、トイレ、和室8畳・ 6畳 2階 和室6畳・ 6畳 |
||
|---|---|---|---|
| 補修の要否(費用負担) | 補修は不要 | ||
| 必要な補修箇所 | - | ||
| 主要施設までの距離 | 坂井市立みくに未来幼保園2.9km、三国西小学校2.6km、三国中学校2.7km 、新保郵便局0.1km | ||
| 交通 | バス 新保 停歩10分 | ||
|---|---|---|---|
| 所在地 | 福井県坂井市三国町新保5-5 | ||
| 物件種目 | 売買 | ||
| 価格 | 1,500,000円 | 借地期間/地代(月額) | -/- |
|---|---|---|---|
| 権利金 | - | 敷金/保証金 | -/- |
| 礼金 | - | 維持費等 | - |
| その他一時金 | - | ||
| 設備 | コンロ二口 ・トイレ2箇所 ・浴室に窓 ・電気 ・上水道 ・下水道 ・プロパンガス ・照明器具 ・側溝 ・縁側 ・庭 ・庭10坪以上 | ||
| こだわりポイント | バス1坪以上 ・空き家バンク登録物件 | ||
| 備考 | - | ||
| 建物名 | 三国町新保(R06-058) | ||
|---|---|---|---|
| 間取り | 4DK | 建物面積 | 92.79㎡ |
| 土地面積 | 213.67㎡ | 私道負担面積 | - |
| 築年月 | 1966年10月 | 階建/階 | 2階建 |
| リフォーム / リノベーション |
- | ||
| 駐車場 | - | 建物構造 | 木造 |
| 土地権利 | 所有権 | 都市計画 | 非線引区域 |
| 用途地域 | 1種中高 | 接道状況 | - |
| 建ぺい率 | 60% | 容積率 | 200% |
| 地目 | 宅地 | 地勢 | - |
| 国土法届出 | - | セットバック | - |
| 建築確認番号 | - | ||
| 現況 | 空き家 | 引渡し | 相談 |
|---|---|---|---|
| 仲介手数料 | - | ||
| 情報公開日 | 2026年3月5日 | 次回更新予定日 | - |
この物件のお問い合わせ先
