- 売買物件
- 三国町
- 募集中
- 物件No.
- No. R06-103
- 所在地
- 福井県坂井市三国町新保6-29
- 価格
- 250万円
- 居住誘導区域外
- 土地及び住宅
2026年3月9日
87
- 建物面積
- 85.9㎡
- 土地面積
- 233.36㎡
- 築年月
- 1869年1月 築
- 間取り
- 3R
- 交通
- バス 新保(川西) 停歩9分
- スーパーが近い
- 病院が近い
- 海が近い
- 平屋
- 古民家風
九頭竜川河口の左岸にあって、古くは河口港として対岸の三国湊と並んで栄えた三国町新保の街並みに位置しています。北前船全盛期の明治元年に、診療所として創建された平屋の建物です。小振りながら築150年を超える歴史と風情を随所に感じさせる町家建築は、地域の歴史文化を将来に伝える上でも是非手入れして、現代社会に活用し後世まで残していきたい建物であると思います。
- 所在地
- 福井県坂井市三国町新保6-29
※正確な位置は取扱会社へお問い合わせください。
物件詳細
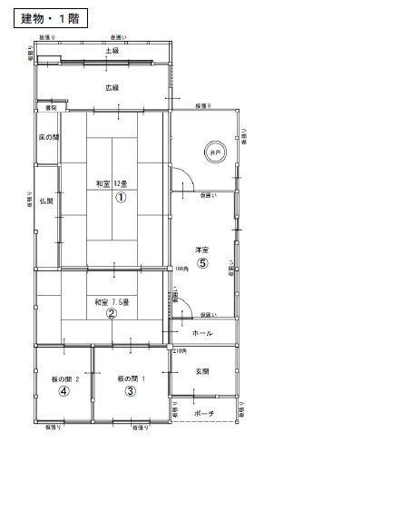
| 間取り詳細 | 1階 板の間が2つ、 和室12畳・7.5畳、洋室4.5畳 | ||
|---|---|---|---|
| 補修の要否(費用負担) | 大幅な補修が必要(入居者負担) | ||
| 必要な補修箇所 | 屋根、外壁、水回りなど全体的な補修が必要 | ||
| 主要施設までの距離 | 三国駅2.7 km、バス停0.65km、病院2.2km、保育園・幼稚園2.1km、三国西小学校2.2km、三国中学校3.0km | ||
| 交通 | バス 新保(川西) 停歩9分 | ||
|---|---|---|---|
| 所在地 | 福井県坂井市三国町新保6-29 | ||
| 物件種目 | 売買 | ||
| 価格 | 2,500,000円 | 借地期間/地代(月額) | -/- |
|---|---|---|---|
| 権利金 | - | 敷金/保証金 | -/- |
| 礼金 | - | 維持費等 | - |
| その他一時金 | - | ||
| 設備 | 上水道 ・下水道 ・プロパンガス | ||
| こだわりポイント | 空き家バンク登録物件 ・インスペクション済 | ||
| 備考 | - | ||
| 建物名 | 三国町新保(R06-103) | ||
|---|---|---|---|
| 間取り | 3R | 建物面積 | 85.9㎡ |
| 土地面積 | 233.36㎡ | 私道負担面積 | - |
| 築年月 | 1869年1月 | 階建/階 | 1階建 |
| リフォーム / リノベーション |
- | ||
| 駐車場 | なし | 建物構造 | 木造 |
| 土地権利 | 所有権 | 都市計画 | 非線引区域 |
| 用途地域 | 1種中高 | 接道状況 | - |
| 建ぺい率 | 60% | 容積率 | 200% |
| 地目 | 宅地 | 地勢 | - |
| 国土法届出 | - | セットバック | - |
| 建築確認番号 | - | ||
| 現況 | 空き家 | 引渡し | 相談 |
|---|---|---|---|
| 仲介手数料 | - | ||
| 情報公開日 | 2026年3月9日 | 次回更新予定日 | - |
この物件のお問い合わせ先










