- 売買物件
- 丸岡町
- 募集中
- 物件No.
- No. R06-105
- 所在地
- 福井県坂井市丸岡町坪江20-1
- 価格
- 1050万円
- 居住誘導区域外
- 土地及び住宅
2026年3月9日
84
- 建物面積
- 332.68㎡
- 土地面積
- 1,017.52㎡
- 築年月
- 1953年4月 築
- 間取り
- 12SLDK
- 交通
- バス 乗兼 停歩5分
- 保育園が近い
- スーパーが近い
- 病院が近い
- 家庭菜園可能
- リフォーム済
坪江は坂井郡の十郷の一つ、坪江郷であった所。南は竹田川の豊かな水資源と肥沃な土壌、北はあわら市東山(海抜200m位の低山)の裾野の緑地と一体となった潤いのある景観の地です。
※当古民家は先々代の古屋を取壊し、先代が本宅を新築、昭和、平成に離れ及びLDK水回りを増改築したものであります。
※内部家財遺品整理後引渡し、他は現状姿売渡
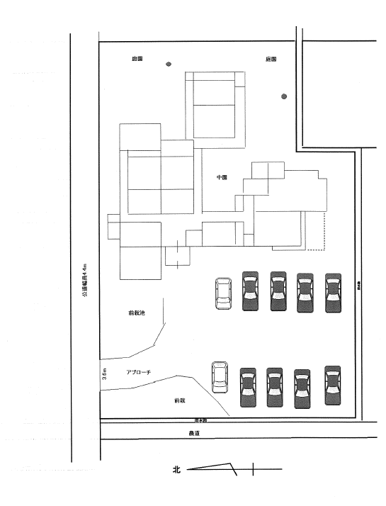
※アプロ―チ進入路より広い空地があり、車10台は駐車可能です。
※趣味悠々、田舎暮らしを希望の人に!!
※IT系企業の住まい兼オフィスに、保養施設に!!
- 所在地
- 福井県坂井市丸岡町坪江20-1
※正確な位置は取扱会社へお問い合わせください。
物件詳細
| 間取り詳細 | 1階 居間13畳、台所、風呂 、トイレ(2カ所)、 その他(3帖)、和室10畳・8畳・8畳・8畳・6畳・6畳・6畳・6畳、洋室7畳・4.5畳 2階 和室12.5畳、洋室9畳 |
||
|---|---|---|---|
| 補修の要否(費用負担) | 多少の補修が必要(入居者負担) | ||
| 必要な補修箇所 | - | ||
| 主要施設までの距離 | 丸岡駅6km、長畝小学校3km、丸岡中学校4.1km 、丸岡IC4.1km | ||
| 交通 | バス 乗兼 停歩5分 | ||
|---|---|---|---|
| 所在地 | 福井県坂井市丸岡町坪江20-1 | ||
| 物件種目 | 売買 | ||
| 価格 | 10,500,000円 | 借地期間/地代(月額) | -/- |
|---|---|---|---|
| 権利金 | - | 敷金/保証金 | -/- |
| 礼金 | - | 維持費等 | - |
| その他一時金 | - | ||
| 設備 | CATV ・システムキッチン ・コンロ三口 ・サウナ ・温水洗浄便座 ・トイレ2箇所 ・浴室に窓 ・電気 ・上水道 ・下水道 ・プロパンガス ・照明器具 ・側溝 ・縁側 ・家庭菜園 ・庭 ・サンルーム ・エアコン | ||
| こだわりポイント | 空き家バンク登録物件 | ||
| 備考 | - | ||
| 建物名 | 丸岡町坪江(R06-105) | ||
|---|---|---|---|
| 間取り | 12SLDK | 建物面積 | 332.68㎡ |
| 土地面積 | 1,017.52㎡ | 私道負担面積 | - |
| 築年月 | 1953年4月 | 階建/階 | 2階建 |
| リフォーム / リノベーション |
1971年 離れ増改築 1987年 LDK、水回り改築 |
||
| 駐車場 | 10台 | 建物構造 | 木造 |
| 土地権利 | 所有権 | 都市計画 | 非線引区域 |
| 用途地域 | 指定無 | 接道状況 | - |
| 建ぺい率 | 60% | 容積率 | 200% |
| 地目 | 宅地 | 地勢 | - |
| 国土法届出 | - | セットバック | - |
| 建築確認番号 | - | ||
| 現況 | 居住中・賃貸中 | 引渡し | 相談 |
|---|---|---|---|
| 仲介手数料 | - | ||
| 情報公開日 | 2026年3月9日 | 次回更新予定日 | - |
この物件のお問い合わせ先
エステート天谷
TEL: 0776-61-3254
E-mail: y.amaya-0517@za2.so-net.ne.jp
免許番号: 福井県知事(3)第1542号
取引態様: 仲介


















