- 賃貸物件
- 三国町
- 募集中
- 物件No.
- No. R07-039
- 所在地
- 福井県坂井市三国町新宿二丁目7-2
- 価格
- 3.8万円
- 居住誘導区域内
- 土地及び住宅
2026年3月10日
165
- 建物面積
- 28.54㎡
- 土地面積
- 80.63㎡
- 築年月
- 1989年1月 築
- 間取り
- 2DK
- 交通
- バス 米ケ脇 停歩15分
- 病院が近い
- 海が近い
- 平屋
- リフォーム済
- VR内覧可能
1981年(昭和56年)6月以降着工
- 所在地
- 福井県坂井市三国町新宿二丁目7-2
※正確な位置は取扱会社へお問い合わせください。
物件詳細
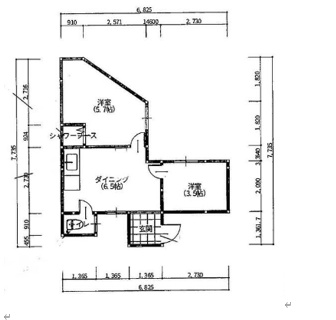
| 間取り詳細 | 1階 居間6.5畳、台所、トイレ、洋室5.7畳・3.5畳、その他(シャワー) | ||
|---|---|---|---|
| 補修の要否(費用負担) | - | ||
| 必要な補修箇所 | - | ||
| 主要施設までの距離 | 三国港駅1.7km、病院0.7km、雄島小学校1.8km、三国中学校2.7km | ||
| 交通 | バス 米ケ脇 停歩15分 | ||
|---|---|---|---|
| 所在地 | 福井県坂井市三国町新宿二丁目7-2 | ||
| 物件種目 | 賃貸 | ||
| 価格 | 38,000円 | 借地期間/地代(月額) | -/- |
|---|---|---|---|
| 権利金 | - | 敷金/保証金 | 76,000円 |
| 礼金 | 38,000円 | 維持費等 | - |
| その他一時金 | - | ||
| 設備 | プロパンガス給湯 ・シャワールーム ・下水道 ・プロパンガス ・公営水道 ・室内洗濯機置場 | ||
| こだわりポイント | 空き家バンク登録物件 ・平屋 ・閑静な住宅街 | ||
| 備考 |
ガスコンロ使用不可浴室なし(シャワーのみ) トイレ簡易洋式P、家屋後手小川あり |
||
| 建物名 | 三国町新宿(R07-039) | ||
|---|---|---|---|
| 間取り | 2DK | 建物面積 | 28.54㎡ |
| 土地面積 | 80.63㎡ | 私道負担面積 | - |
| 築年月 | 1989年1月 | 階建/階 | 1階建 |
| リフォーム / リノベーション |
2025年8月 水回り(キッチン・トイレ・給湯器) | ||
| 駐車場 | 1台 | 建物構造 | 木造 |
| 土地権利 | - | 都市計画 | - |
| 用途地域 | - | 接道状況 | - |
| 建ぺい率 | - | 容積率 | - |
| 地目 | - | 地勢 | - |
| 国土法届出 | - | セットバック | - |
| 建築確認番号 | - | ||
| 現況 | 空き家 | 引渡し | 相談 |
|---|---|---|---|
| 仲介手数料 | - | ||
| 情報公開日 | 2026年3月10日 | 次回更新予定日 | - |
この物件のお問い合わせ先
株式会社西陣
913-0048 福井県坂井市三国町緑ケ丘4-15-35
TEL: 0776-82-7600
E-mail: nishijin@smile.ocn.ne.jp
免許番号: 福井県知事(9)第908号
取引態様: 仲介
TEL: 0776-82-7600
E-mail: nishijin@smile.ocn.ne.jp
免許番号: 福井県知事(9)第908号
取引態様: 仲介








